Description
- NO ONWARD CHAIN
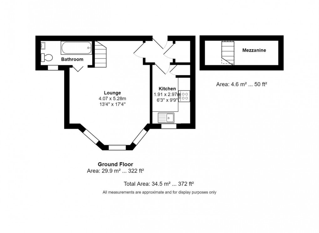
- WELL PROPORTIONED STUDIO WITH MEZZANINE SLEEPING AREA
- BEAUTIFUL HIGH CEILINGS & PERIOD FEATURES
- CENTRAL HOVE LOCATION
- MODERN WHITE BATHROOM SUITE
- RECENTLY DECORATED
- SEPERATE KITCHEN WITH PLEASANT VIEW
- EXCLUSIVE TO STEVENS
A FANTASTICALLY LOCATED STUDIO FLAT in the Centre of Hove, set towards the rear of this PERIOD BUILDING. With beautiful High Ceilings, decorative cornicing and set on a desirable road between the Cricket Ground & Church Road. Sold with NO-ONWARD CHAIN.
Situation
The property is situated in a very desirable road on the Eastern side side of Hove just a short walk of Church Road with its shopping facilities and numerous cafes, pubs and restaurants. The Sea and promenade are about ten minutes walk and the Sussex County Cricket Ground is about two minutes walk. Hove main-line railway station is within walking distance and the property is close to bus routes to Brighton.
Description
Located in the heart of bustling Hove and offered for sale with no onward chain, this bright and spacious studio apartment has recently been redecorated. Whether you are looking for a first-time purchase, an investment, or a pied-à-terre, this property is not to be missed.
Underfoot before entering the period building, you are greeted by a traditional tiled entrance and a large front door that leads to the hallway. High ceilings and original features create a welcoming atmosphere. This apartment is situated towards the rear of the building, adding to its quiet ambiance.
The studio itself is expansive, featuring tall sash windows that let in abundant natural light. The space has been cleverly arranged to maximize functionality, and an additional mezzanine area has been added for sleeping. The kitchen overlooks the back of the property and includes a fold-down breakfast table, enhancing its practicality. The modern white bathroom suite has a shower over the bath and is finished in a neat half-tile pattern.
Early viewing is essential to fully appreciate the location, features, and condition of this studio apartment!
Property Information
Council Tax Band A: £1719.63 2026/2027
Utilities: Mains Gas and Electric. Mains water and sewerage
Parking: Permit Parking
Broadband: Standard 17 Mbps, Superfast 157 Mbps, Ultrafast 1800 Mbps (OFCOM checker)
Mobile: Good coverage (OFCOM checker)
Lease: There are 153 years remaining
Property Misdescription Act 1991
Although every effort has been taken in the production of these particulars, prospective purchasers should note:
1. All measurements are approximate. 2. Services to the property, appliances and fittings included in the sale are believed to be in working order (although they may have not been checked). 3. Prospective purchasers are advised to arrange their own tests and/or survey before proceeding with the purchase. 4. The agent has not checked the deeds to verify the boundaries. Intending purchasers should satisfy themselves via their solicitor as to the actual boundaries of the property.
Floorplan
EPC
To discuss this property call our West Sussex branch:
Market your property
with Stevens Estate Agents
Book a market appraisal for your property today. Our virtual options are still available if you prefer.